Our Projects Portfolio

Penthouses

Now Penthouse

Penthouse of 3.720 sqf
TYPE

Penthouses

Client

Properties' Investor

DELIVERY

10.25.2024

Overview

What we did

OCKHOME have been involved into the full interior project development, from the concept deign, till handing over of the works and furniture installation. The project consit of a Penhouse of 2.900 sqm divided into 2 levels with double-volume living room style "loft". Total rooms: 4 Bedrooms, 1 Office Room, 1 Play Room, 7 Bathrroms, 1 Maid Room with dedicated Bathroom, 1 Storage Room, 1 Laundry Room/

Virtrual Tour 1Virtrual Tour 2

"Outstanding quality and timely delivery! The team exceeded our expectations with their meticulous attention to detail and commitment to delivering the project right on schedule. Truly a seamless experience."

Sophie

Properties' Investor
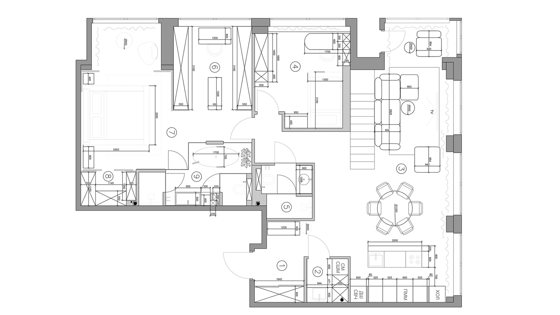
SPACE OPTIMIZATION

Floor Plan Optimization

View Live

Before and After

No items found.
Work Spotlight

Project gallery

whatapp us
No items found.

Ready to discuss your development strategy?

Book a private consultation with our team to evaluate scope, timelines, and execution strategy.